






| Caractéristique | Unité | Tricel Novo FR6/3000 | Tricel Novo FR6/4000 |
|---|---|---|---|
| Numéro d’agrément (Gravitaire) | 2011-006-mod01 | 2012-003-mod01 | |
| Numéro d’agrément (Pompe) | 2017-004 | 2017-004-mod01 | |
| Capacité de traitement en équivalents-habitants (2) (= nombre de pièces principales conf. arrêté minist. du 07/03/12) |
EH | jusqu’à 6(6) | jusqu’à 6 |
| Débit nominal(2) | l/jour | 150 – 900 | 150 – 900 |
| Charge organique (2) | kgDBO5/j | 0,06 – 0,36 | 0,06 – 0,36 |
| Volume utile total | l | 3000 | 4000 |
| Compartiment de décantation primaire | l | 1400 | 2400 |
| Compartiment d’aération | l | 900 | 900 |
| Compartiment de clarification | l | 700 | 700 |
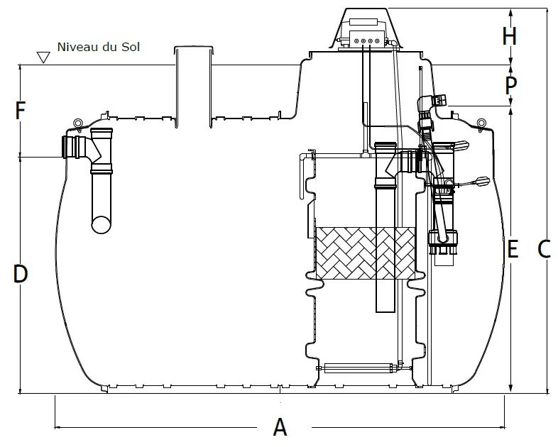
| Longueur totale (A) | cm | 210 | 260 |
| Largeur totale (B) | cm | 164 | 164 |
| Hauteur totale (C) | cm | 224 | 224 |
| Distance de la base au fil d'eau d'entrée (D) | cm | 137,5 | 137,5 |
| Distance de la base au fil d'eau de sortie (E) (Grav./Pompe) | cm | 130 / 158,5 | 130 / 158,5 |
| Distance entre niveau du sol et FEE (F) | cm | 53,5 | 53,5 |
| Distance entre niveau du sol et FES (G)(4) / (P)(5) | cm | 61 / 25 | 61 / 25 |
| Différence de fil d'eau entrée/sortie (4) | cm | 7,5 | 7,5 |
| Hauteur au-dessus du niveau du sol (H) | cm | 33 | 33 |
| Diamètre entrée/sortie (gravitaire/pompe) | mm | 100 / 40 | 100 / 40 |
| Nombre de tampons d'accès/rehausse | unités | 1 | 1 |
| Poids à vide (3) | kg | 275 | 300 |
| Caractéristique | Unité | Tricel Novo FR9/5000 | Tricel Novo FR9/6000 |
|---|---|---|---|
| Numéro d’agrément (Gravitaire) | 2011-006-ext01-mod01 | 2011-006-ext02-mod01 | |
| Numéro d’agrément (Pompe) | 2017-004-ext01 | 2017-004-ext02 | |
| Capacité de traitement en équivalents-habitants (2) (= nombre de pièces principales conf. arrêté minist. du 07/03/12) |
EH | 7 – 9 | 7 – 9 |
| Débit nominal(2) | l/jour | 1050 – 1350 | 1050 – 1350 |
| Charge organique(2) | kgDBO5/j | 0,42 – 0,54 | 0,42 – 0,54 |
| Volume utile total | l | 4731 | 5546 |
| Compartiment de décantation primaire | l | 2408 | 3223 |
| Compartiment d’aération | l | 1377 | 1377 |
| Compartiment de clarification | l | 946 | 946 |
| Longueur totale (A) | cm | 310 | 360 |
| Largeur totale (B) | cm | 164 | 164 |
| Hauteur totale (C) | cm | 224 | 224 |
| Distance de la base au fil d'eau d'entrée (D) | cm | 137,5 | 137,5 |
| Distance de la base au fil d'eau de sortie (E) (Grav./Pompe) | cm | 130 / 158,5 | 130 / 158,5 |
| Distance entre niveau du sol et FEE (F) | cm | 53,5 | 53,5 |
| Distance entre niveau du sol et FES (G)(4) / (P)(5) | cm | 61 / 25 | 61 / 25 |
| Différence de fil d'eau entrée/sortie (4) | cm | 7,5 | 7,5 |
| Hauteur au-dessus du niveau du sol (H) | cm | 33 | 33 |
| Diamètre entrée/sortie (gravitaire/pompe) | mm | 100 / 40 | 100 / 40 |
| Nombre de tampons d'accès/rehausse | unités | 1 | 1 |
| Poids à vide (3) | kg | 375 | 400 |
| Caractéristique | Unité | Tricel Novo FR11/6000 | Tricel Novo FR11/7000 |
|---|---|---|---|
| Numéro d’agrément (Gravitaire) | 2011-006-ext03-mod01 | 2011-006-ext04-mod01 | |
| Numéro d’agrément (Pompe) | 2017-004-ext03 | 2017-004-ext04 | |
| Capacité de traitement en équivalents-habitants (2) (= nombre de pièces principales conf. arrêté minist. du 07/03/12) |
EH | 10 – 11 | 10 – 11 |
| Débit nominal(2) | l/jour | 1500 – 1650 | 1500 – 1650 |
| Charge organique(2) | kgDBO5/j | 0,60 – 0,66 | 0,60 – 0,66 |
| Volume utile total | l | 5546 | 7176 |
| Compartiment de décantation primaire | l | 2488 | 4118 |
| Compartiment d’aération | l | 1695 | 1695 |
| Compartiment de clarification | l | 1363 | 1363 |
| Longueur totale (A) | cm | 360 | 460 |
| Largeur totale (B) | cm | 164 | 164 |
| Hauteur totale (C) | cm | 227 | 227 |
| Distance de la base au fil d'eau d'entrée (D) | cm | 137,5 | 137,5 |
| Distance de la base au fil d'eau de sortie (E) (Grav./Pompe) | cm | 130 / 158,5 | 130 / 158,5 |
| Distance entre niveau du sol et FEE (F) | cm | 53,5 | 53,5 |
| Distance entre niveau du sol et FES (G)(4) / (P)(5) | cm | 61 / 25 | 61 / 25 |
| Différence de fil d'eau entrée/sortie (4) | cm | 7,5 | 7,5 |
| Hauteur au-dessus du niveau du sol (H) | cm | 36 | 36 |
| Diamètre entrée/sortie (gravitaire/pompe) | mm | 100 / 40 | 100 / 40 |
| Nombre de tampons d'accès/rehausse | unités | 2 | 2 |
| Poids à vide (3) | kg | 400 | 500 |
| Caractéristique | Unité | Tricel Novo FR14/8000 |
|---|---|---|
| Numéro d’agrément (Gravitaire) | 2011-006-ext05-mod01 | |
| Numéro d’agrément (Pompe) | 2017-004-ext05 | |
| Capacité de traitement en équivalents-habitants (2) (= nombre de pièces principales conf. arrêté minist. du 07/03/12) |
EH | 12 – 14 |
| Débit nominal(2) | l/jour | 1800 – 2100 |
| Charge organique(2) | kgDBO5/j | 0,72 – 0,84 |
| Volume utile total | l | 7176 |
| Compartiment de décantation primaire | l | 3311 |
| Compartiment d’aération | l | 2249 |
| Compartiment de clarification | l | 1616 |
| Longueur totale (A) | cm | 460 |
| Largeur totale (B) | cm | 164 |
| Hauteur totale (C) | cm | 227 |
| Distance de la base au fil d'eau d'entrée (D) | cm | 137,5 |
| Distance de la base au fil d'eau de sortie (E) (Grav./Pompe) | cm | 130 / 158,5 |
| Distance entre niveau du sol et FEE (F) | cm | 53,5 |
| Distance entre niveau du sol et FES (G)(4) / (P)(5) | cm | 61 / 25 |
| Différence de fil d'eau entrée/sortie (4) | cm | 7,5 |
| Hauteur au-dessus du niveau du sol (H) | cm | 36 |
| Diamètre entrée/sortie (gravitaire/pompe) | mm | 100 / 40 |
| Nombre de tampons d'accès/rehausse | unités | 3 |
| Poids à vide (3) | kg | 500 |
| Caractéristique | Unité | Tricel Novo FR17/9000 |
|---|---|---|
| Numéro d’agrément (Gravitaire) | 2011-006-ext07-mod01 | |
| Numéro d’agrément (Pompe) | 2017-004-ext07 | |
| Capacité de traitement en équivalents-habitants (2) (= nombre de pièces principales conf. arrêté minist. du 07/03/12) |
EH | 15 – 17 |
| Débit nominal(2) | l/jour | 2250 – 2550 |
| Charge organique(2) | kgDBO5/j | 0,90 – 1,02 |
| Volume utile total | l | 8806 |
| Compartiment de décantation primaire | l | 4183 |
| Compartiment d’aération | l | 2755 |
| Compartiment de clarification | l | 1868 |
| Longueur totale (A) | cm | 560 |
| Largeur totale (B) | cm | 164 |
| Hauteur totale (C) | cm | 227 |
| Distance de la base au fil d'eau d'entrée (D) | cm | 137,5 |
| Distance de la base au fil d'eau de sortie (E) (Grav./Pompe) | cm | 130 / 158,5 |
| Distance entre niveau du sol et FEE (F) | cm | 53,5 |
| Distance entre niveau du sol et FES (G)(4) / (P)(5) | cm | 61 / 25 |
| Différence de fil d'eau entrée/sortie (4) | cm | 7,5 |
| Hauteur au-dessus du niveau du sol (H) | cm | 36 |
| Diamètre entrée/sortie (gravitaire/pompe) | mm | 100 / 40 |
| Nombre de tampons d'accès/rehausse | unités | 4 |
| Poids à vide (3) | kg | 600 |
| Caractéristique | Unité | Tricel Novo FR20/10000 |
|---|---|---|
| Numéro d’agrément (Gravitaire) | 2011-006-ext09-mod01 | |
| Numéro d’agrément (Pompe) | 2017-004-ext09 | |
| Capacité de traitement en équivalents-habitants (2) (= nombre de pièces principales conf. arrêté minist. du 07/03/12) |
EH | 18 – 20 |
| Débit nominal (2) | l/jour | 2700 – 3000 |
| Charge organique (2) | kgDBO5/j | 1,08 – 1,20 |
| Volume utile total | l | 10436 |
| Compartiment de décantation primaire | l | 5250 |
| Compartiment d’aération | l | 3081 |
| Compartiment de clarification | l | 2105 |
| Longueur totale (A) | cm | 660 |
| Largeur totale (B) | cm | 164 |
| Hauteur totale (C) | cm | 227 |
| Distance de la base au fil d'eau d'entrée (D) | cm | 137,5 |
| Distance de la base au fil d'eau de sortie (E) (Grav./Pompe) | cm | 130 / 158,5 |
| Distance entre niveau du sol et FEE (F) | cm | 53,5 |
| Distance entre niveau du sol et FES (G)(4) / (P)(5) | cm | 61 / 25 |
| Différence de fil d'eau entrée/sortie (4) | cm | 7,5 |
| Hauteur au-dessus du niveau du sol (H) | cm | 36 |
| Diamètre entrée/sortie (gravitaire/pompe) | mm | 100 / 40 |
| Nombre de tampons d'accès/rehausse | unités | 4 |
| Poids à vide (3) | kg | 700 |


Facebook